Carpenteria

Con IronCAD puoi creare travi, telai e strutture in acciaio in 3D in modo semplice, veloce e preciso.

Scegli tra un’ampia gamma di profili standard oppure crea la tua libreria personalizzata.

È inoltre possibile realizzare scale, ringhiere, piattaforme e costruzioni metalliche di ogni tipo, con la possibilità di generare facilmente disegni 2D a partire dai modelli 3D.

Scarica IronCAD -o- Contattaci

La versione di prova dura 30 giorni e contiene le stesse funzionalità di una versione completa.

Il supporto (completamente gratuito) è incluso durante il periodo di prova.

Controlla i requisiti di sistema

Creazione di travi e telai in 3D con il Drag & Drop

IronCAD consente di progettare travi, profilati e telai in 3D in pochi minuti grazie alla sua interfaccia Drag & Drop.
È sufficiente trascinare i profili desiderati nella scena 3D, agganciarli e combinarli liberamente.


Durante la progettazione, IronCAD genera automaticamente distinte dei pezzi complete di lunghezza, peso e materiale, riducendo drasticamente i tempi di documentazione.

Questo video offre una panoramica su come progettare travi e profilati in 3D e generare disegni 2D con IronCAD.

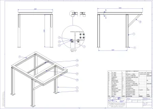
Dal 3D al 2D per una produzione senza errori

Steels_2D
Dopo aver creato il modello 3D, IronCAD consente di generare rapidamente disegni 2D associativi, completi di quote e distinte materiali.
Le distinte possono includere automaticamente informazioni come peso, lunghezza, sezione e tipo di profilo.

Grazie alla funzione di esportazione in batch, è possibile produrre più tavole 2D contemporaneamente utilizzando i propri template personalizzati, completi di quotature, cartiglio e lista dei pezzi, tutto pronto con un solo clic.

Travi e profilati secondo ogni standard

Steels_dimens
IronCAD include una vasta libreria di profili standard internazionali, tra cui travi a H, I, U, L, T, oltre a tubi quadri, rettangolari e circolari.
È anche possibile creare dimensioni personalizzate e salvarle per un riutilizzo rapido.

Le proprietà dei materiali possono essere scelte da elenchi standard o personalizzati, comprendenti acciaio, acciaio inox e alluminio.
Le travi si adattano facilmente a ogni esigenza di carpenteria industriale.

Creare scale e ringhiere in acciaio

Con IronCAD puoi creare una scala completa in acciaio in pochi secondi selezionando semplicemente le opzioni desiderate nella finestra di dialogo.
È possibile impostare numero di gradini, tipo di corrimano (a piastra o a trave) e generare automaticamente le giunzioni bullonate per le pedate.


Allo stesso modo, è semplice creare ringhiere e parapetti personalizzati, trascinando e regolando i componenti con le maniglie 3D.
Ogni modifica aggiorna istantaneamente il modello sullo schermo, permettendo un controllo visivo immediato.

Funzionalità come queste nascono dal contatto diretto tra sviluppatori e utenti IronCAD, senza intermediari: un approccio che garantisce soluzioni pratiche e in costante evoluzione.

Condivisione e visualizzazione online

WEB-viewer_steels
Una volta completato un progetto, IronCAD consente di condividerlo facilmente con clienti e collaboratori.
Con un solo clic, il modello può essere caricato nel visualizzatore 3D online e aperto da chiunque tramite un normale browser web, senza installare alcun software.

Chi riceve il link può ruotare il modello, isolare parti, sezionare dinamicamente, zoomare e visualizzare le proprietà dei componenti.
Una soluzione perfetta per presentazioni, revisioni e collaborazioni a distanza.

Lavorazioni in lamiera per la carpenteria

SheetMetal
IronCAD integra anche un pacchetto completo per la modellazione e lo sviluppo delle lamiere.
È possibile creare lamiere curve, piegate o complesse (es. da tondo a quadrato) e svilupparle ed esportarle in formato 2D DXF-DWG per il taglio laser o plasma.
Tutte le funzioni sono perfettamente integrate con gli strumenti di carpenteria, consentendo di gestire telai misti in acciaio e lamiera nello stesso progetto.
Clicca qui per maggiori informazioni

Saltängens Mekaniska AB: efficienza e precisione in officina

Saltangen-Head
Fondata nel 1950, Saltängens Mekaniska Verkstad AB è specializzata nella lavorazione, riparazione e saldatura di grandi strutture e componenti meccanici.
Con una superficie produttiva di oltre 5000 m² e macchinari in grado di gestire pezzi fino a 13 metri di lunghezza e 30 tonnellate di peso, l’azienda utilizza IronCAD per ottimizzare la progettazione e la comunicazione con i clienti.

“IronCAD è uno strumento comodo per noi, che ci permette di progettare e sviluppare basi di lavorazione in modo rapido e semplice.
Ci offre anche la possibilità di presentare visivamente diverse soluzioni ai nostri clienti.
Lo utilizziamo principalmente per progettare lamiere, svasature, telai in acciaio e profili di taglio.
Siamo molto soddisfatti del supporto rapido e competente che riceviamo.”

Magnus Andersson Tecnico di Produzione - Saltängens Mekaniska Verkstad AB

Mgs Smide i Sthlm AB: esperienza e risultati concreti

MGSsmide
Mgs Smide i Sthlm AB vanta una lunga esperienza nella costruzione di strutture in acciaio, offrendo servizi di taglio laser, taglio al plasma e produzione di travi portanti.
L’azienda utilizza IronCAD da molti anni, sfruttando appieno le librerie di travi standard e la possibilità di esportare file DXF per il taglio laser o plasma.

“Qui a Mgs produciamo soprattutto travi in acciaio, quindi utilizzo quotidianamente la funzione di Carpenteria di IronCAD.
È molto facile costruire e manipolare i profilati con tutte le funzioni disponibili nel programma.”

Matthias Sjöström Mgs Smide i Sthlm AB

IronCAD Carpenteria – Potenza e semplicità per la costruzione in acciaio

Con IronCAD, la progettazione di strutture in acciaio, scale e telai diventa più rapida, flessibile e precisa.
Dal modello 3D al disegno 2D, dalla produzione al taglio laser, IronCAD offre tutti gli strumenti necessari in un unico ambiente integrato.

IronCAD: la soluzione completa per la carpenteria metallica moderna.

Profilati - HE IPE UPN U T L...

Scopri il corso gratuito dove imparerai a posizionare, associare, estendere e rifilare correttamente i profilati, costruendo un metodo di modellazione solido ed efficiente.
Il corso è orientato alla pratica, con esempi reali e tecniche di produttività per ridurre i tempi di modellazione e aumentare la precisione.
Comprendere la logica e i parametri dei profilati.

  • Posizionamento e associazione efficiente degli steels.
  • Utilizzo di strumenti di editing come Extend Steel e Quick Trim.
  • Workflow più rapidi e professionali nella modellazione.

Ideale sia per chi inizia da zero sia per utenti intermedi che vogliono ottimizzare il proprio flusso di lavoro.

Scarica IronCAD -o- Contattaci

La versione di prova dura 30 giorni e contiene le stesse funzionalità di una versione completa.

Il supporto (completamente gratuito) è incluso durante il periodo di prova.

Controlla i requisiti di sistema